Lot 0003 17867 W. Fulton St | New Homes for Sale in Goodyear, AZ

Est. Completion:
Move-in Ready!
Erie | El Cidro

Single Family Home

Est. Loading... /mo

$524,990

Buy Now Est. Completion:
Move-in Ready!
  • Square Footage

    1,971 sq ft

  • Bedrooms

    3 beds

  • Bathrooms

    2 baths

  • Number of Floors

    1 floor

  • Parking Bays

    2 bays

El Cidro
17867 W. Fulton St,
Goodyear, AZ 85338

phone icon 623-270-7715
watch icon Sales Office Hours

Sales Office Hours

Monday 10:00 AM - 06:00 PM

Tuesday 10:00 AM - 06:00 PM

Wednesday 10:00 AM - 06:00 PM

Thursday 10:00 AM - 06:00 PM

Friday 12:00 PM - 06:00 PM

Saturday 10:00 AM - 06:00 PM

Sunday 11:00 AM - 06:00 PM

Overview

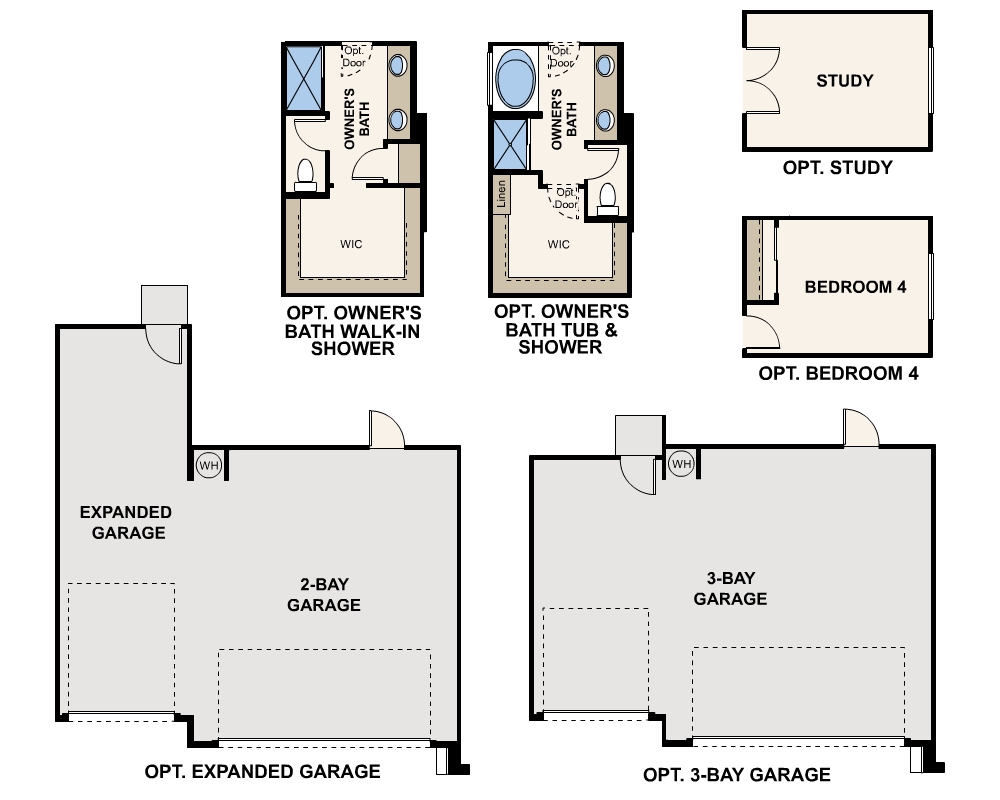
Uncover smart living with our Plan 6 at El Cidro, where comfort and convenience collide. An inviting desert landscape sets the tone as you enter this ranch floor plan. The foyer leads you into the spacious great room, seamlessly connected with a breakfast nook and well-appointed kitchen featuring granite slab countertops and stainless steel appliances. The separate dining room offers the perfect entertainment area, as does the covered patio. Secluded to a corner of the house, the owner’s suite offers privacy with its en-suite bathroom boasting a dual-sink vanity and large walk-in closet. On the other side of the home, you'll find two secondary bedrooms separated by the home’s second full bathroom. Completing this incredible home are a laundry room, 2-bay garage with entry, and mud room for added functionality.

 

Impressive included features:

 

·       9’ ceilings throughout

·       Front yard landscaping

·       Ceramic tile flooring at entry, kitchen, all baths and laundry

·       Granite slab counters in kitchen and bathrooms

·       Century Home Connect smart home technology

 

Options may include:

 

·       Study or Bedroom 4 in lieu of dining room

·       Owner’s bathroom walk-in shower

·       Owner’s bathtub and shower

·       Cabinets and sink in laundry

·       3-bay garage

·       Expanded garage

·       Extended covered patio

Interactive Floor Plan

Enjoy a closer look at what this home has to offer!

Explore homesites at this community!

Get a feel for the neighborhood and find the right homesite for you.

Community Information

El Cidro

Tour Our Models Today!

Welcome to El Cidro, a new home community offering inspired new homes for sale in Goodyear, AZ. Conveniently located near I-10, Goodyear boasts small-city living combined with easy access to employment and entertainment hubs across the Phoenix metro area. Goodyear is a great place to live, offering an abundance of desirable dining, unique shopping and sporting events at the Goodyear Ballpark—a spring training stadium for the MLB's Cactus League—plus an abundance of recreational options like visiting Estrella Mountain Regional Park, hiking, fishing, horseback riding, mountain biking and more. You’ll also love the exceptional community amenities like trails, playgrounds and green space. El Cidro boasts some of the best homebuying sites in Goodyear, AZ—showcasing a versatile selection of single-story plans with open-concept layouts and stylish finishes. Explore these Maricopa County, AZ homes for sale and start your dream home journey today!

Community Amenities

  • Walking trails throughout the community 
  • Large central open space
  • Green areas throughout 
  • Playground 
  • Ramadas
  • Picnic tables
  • BBQ’s
  • Gathering areas
  • Sport courts

Schools

  • Wildflower Elementary School
  • Desert Thunder Elementary School
  • Avondale Middle School
  • Desert Edge High Schol

Shopping and Dining

  • Canyon Trails Towne Center
    Goodyear, AZ 85338
  • Estrella Marketplace
    Goodyear, AZ 85338
  • Target
    Goodyear, AZ 85338
  • Fry's Marketplace
    Goodyear, AZ 85338
  • Safeway
    Goodyear, AZ 85338
  • BJ's Restaurant & Brewhouse
    Goodyear, AZ 85395
  • Garden Pizza
    Goodyear, AZ 85338
  • Babbo Italian Eatery
    Goodyear, AZ 85395
  • Wildflower Bread Company
    Goodyear, AZ 85395
  • Starbucks
    Goodyear, AZ 85338

Homeowner reviews

See for yourself what our Century Communities homeowners are saying about their dream homes!

Request Information

Do You Currently Rent or Own
I'm a realtor required
Schedule a Tour
Century Communities' privacy policy can be found at www.centurycommunities.com/privacy-policy. You understand that by providing your information to us, we will reach out to you via the information you provide us. Standard text message rates apply. Users can opt out of text messages at any time by texting STOP. ©2025 Century Communities, Inc.

 

This site is protected by reCAPTCHA and the Google Privacy Policy and Terms of Service apply.